top of page



AMBIANT DEL BUREAUX
Ubicación: Calle Migueletes 1229, CABA, Argentina.
Uso: Estudios profesionales y oficinas
Año: 2012
Superficie: 5735 Mt2
La sutil fachada de Ambiant Bureaux se posa sobre el límite exterior en la calle Migueletes, albergando en su interior un patio central que captura la luz natural y ventila todos sus niveles.
La transparencia y los reflejos de la materialidad como estrategias que exponen el diseño estructural es la impronta de este proyecto.
La exploración tectónica del patio central tan permeable, permite el ingreso de luz natural hasta planta baja, además de la integración de los diferentes niveles con las actividades diarias de sus ocupantes. Generando una propuesta en la cual el núcleo de circulación vertical es un lugar de encuentros.
La fachada exterior esta diseñada respetando criterios de diseño bioclimática para la protección solar que se traducen en confort térmico y ahorro de energía. Por su parte, el diseño de carpinterías de aluminio, el cerramiento vidriado y los elementos de protección solar remarcan el carácter distinguido del edificio, que en consecuencia destaca su entorno inmediato.
El hall de acceso es un espacio de transición entre el exterior y el interior que desemboca en el patio central. La elección de materiales, así como el diseño de cada uno de sus elementos (revestimientos, iluminación, etc.) apuntan a comunicar una sensación de lujo y sobriedad y cuidar en cada caso la optimización y racionalización energética del edificio.
El patio está rematado por una cubierta vidriada que permite el ingreso continúo de luz solar mientras protege de la lluvia y otros elementos naturales. El diseño de la fachada interior acentúa la luminosidad de este espacio mediante el empleo de carpinterías y cerramientos en colores claros y reflectantes que a su vez refuerzan el carácter vertical y puro de este espacio único común.
Estudios profesionales
-
Plantas libres de 348m2, subdivisibles en 176m2 y 171m2.
-
Cocheras 36 en tres subsuelos.
-
Parking motos y bicicletas.
-
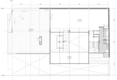
Sum (Sala de usos múltiples) y foyer en último piso, con vista a terrazas.
-
Oficinas:
-
Piso técnico ignífugo óptimo para distribuir instalaciones bajo piso.
-
Preparadas para sistemas de aire acondicionado frío/calor (inteligente).
-
Baños y office con agua caliente individual (sistema eléctrico).
Un patio central abre todas las oficinas al mismo genera sus propias fachadas y le aporta movimiento con la circulación vertical y acceso a las oficinas vidriado, además de aportarle luz y ventilación natural.
Se utilizó energía solar para iluminar las áreas comunes y cocheras , se recupero el agua de lluvia para uso sanitario , se utilizaron sistemas de acondicionando de aire no contaminante y se proveyó de servicio de fibra óptica y piso técnico para optimizar los servicios.
bottom of page
































